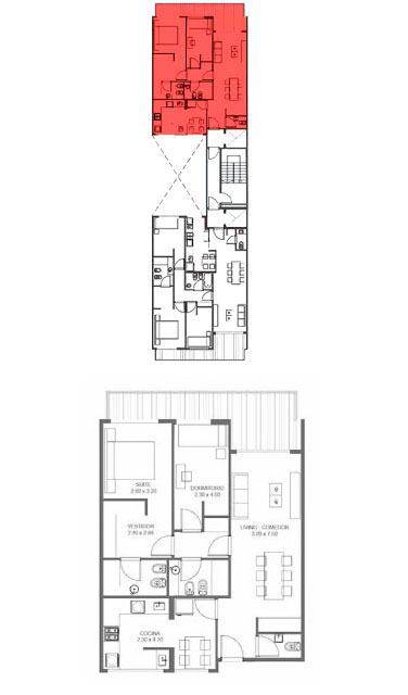
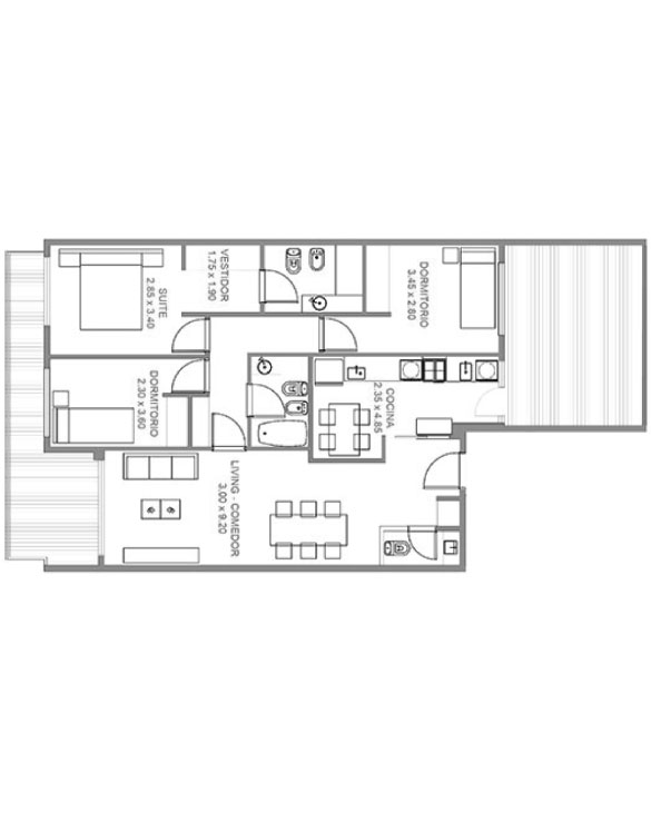
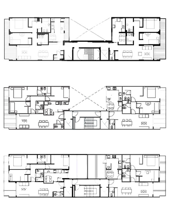
Unidades de 3 y 4 ambientes de alta prestación.
El edificio cuenta con un hall de entrada de categoría con ascensores de última generación.
Las cocheras se sitúan en subsuelo, planta baja y primer piso.
100
%demolición
100
%EXCAVACIÓN
100
%ESTRUCTURAS
100
%MAMPOSTERÍA
100
%INSTALACIONES
100
%TERMINACIONES
CABALLITO, Corazón de la ciudad.
Este barrio se encuentra en el medio de la Ciudad de Buenos Aires. Debe su nombre a la pulpería que en 1821 instaló don Nicolás Vila en la esquina de las actuales calles Rivadavia y Emilio Mitre, que era reconocida por su típica veleta en forma de caballito.
Como todos los barrios del oeste, también éste progresó en forma notable con la llegada del ferrocarril, que desde 1857 atravesó el barrio adoptando el nombre de la famosa pulpería para su estación en el lugar.
Líneas
A
Líneas
Sarmiento
Líneas
55-84-92-145
172-181-242